Flexibilidad
CIBAJ está pensado para poder cubrir cualquier necesidad industrial, ya sea pequeña o grande.

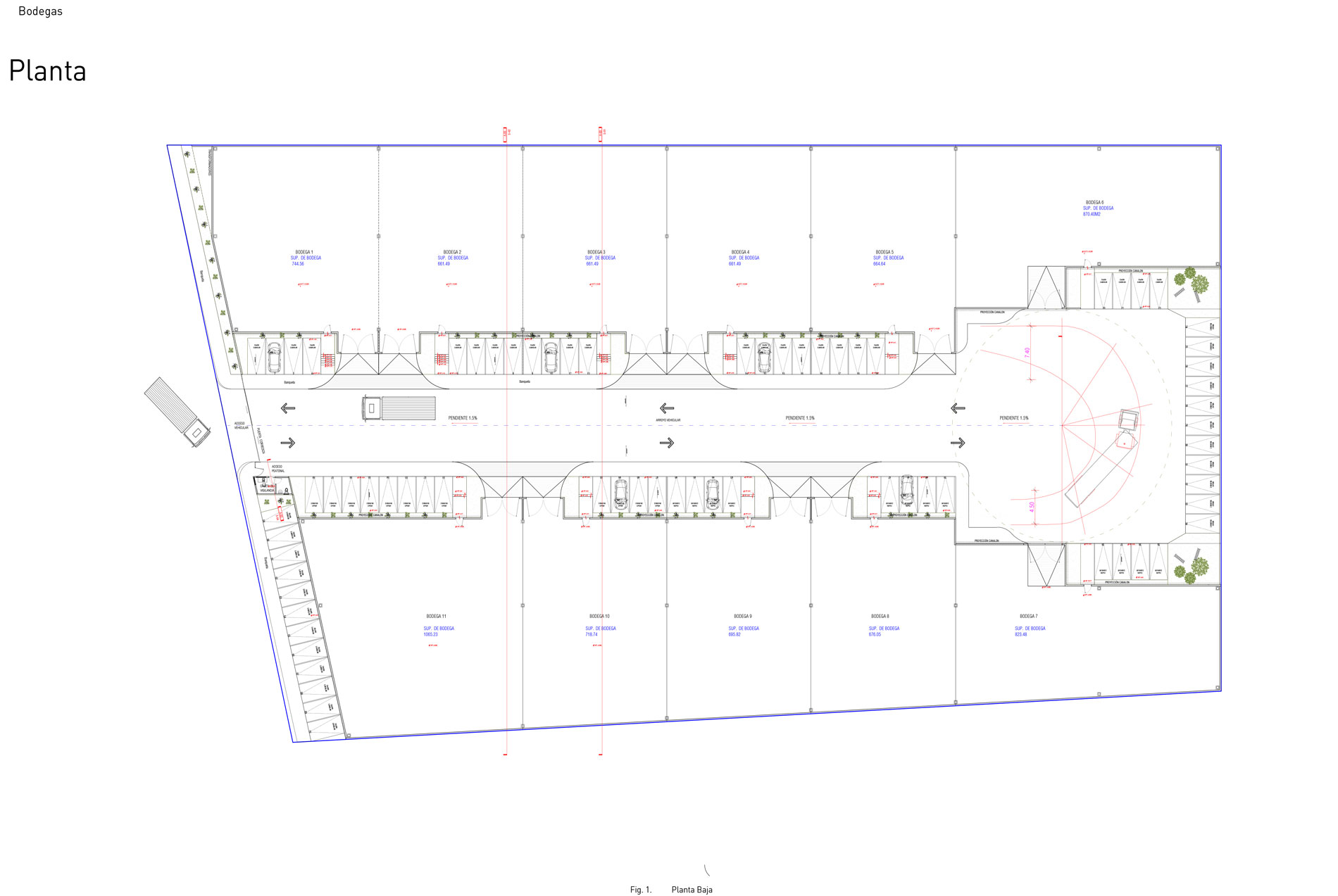
Diferentes Tamaños
Cuenta con diferentes tamaños de bodegas, que van desde los 660 m2 hasta los 1,060 m2.
Combinar espacios
Contamos con la posibilidad de combinar espacios, para satisfacer mayores necesidades de área.
Calle central amplia
Que permite una gran maniobrabilidad para unidades de carga.
Accesos bien diseñados
Para que las maniobras en una bodega no comprometan el acceso a las demás bodegas.
Espacios de estacionamiento
Cada bodega cuenta por lo menos con 4 cajones de estacionamiento privado, y el coto tiene 11 cajones de uso compartido.














